331
売買
町家331
金沢市扇町5番4号(108、109-1、111番)
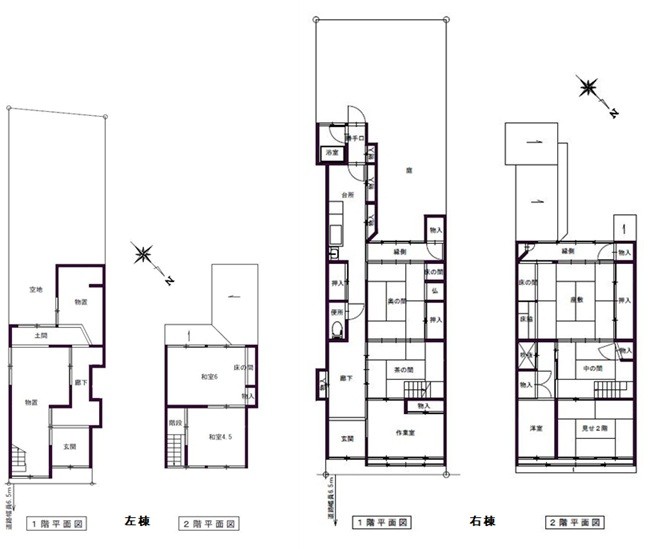
こまちなみ保存区域 こまちなみ保存建造物(右棟)
物件概要
- 主要用途
- 住宅
- 構造階数
- 木造 2階建て
- 面積 (公簿)
- 211.26 m²
- 延床面積
- 157 m²
- 価格
- 2,200万円
- 建築年次
- 最寄交通機関
- 北鉄バス、兼六園下・金沢城下車、徒歩13分
- 最寄の施設
- 兼六園
- 最寄の学校
- 兼六小学校、兼六中学校
- 駐車施設
- 無し
- 条件
- 2棟合わせての売却
- 備考
- 右棟は藩政末期の建築と思われる
- 地図
-
お問い合わせ
- 免許番号
- 石川県知事免許(5)第3750号
- 会社名
- 有限会社あおぞらプランニング
- 電話番号
- 076-223-0202
- Fax
- 076-223-0203
建物調査(目視)
作成:(一社) 石川県建築士会
- 外観
-
- 屋根
- 瓦棒葺き(左棟、右棟)
- 外壁
- 正面:漆喰、他:波板トタン(左棟、右棟)
- 建具
- 木製建具、一部:アルミ製建具(左棟、右棟)
- 設備
- 水周りなし(左棟)、キッチン・浴室・便所(右棟)、キッチン以外は現状で使用可能と思われる
- 構造
- 詳細な調査必要(耐震性能・蟻害・腐食等)
- 敷地
- 北側で接道 北・東側:民家 南側:傾斜地(急傾斜地イエローゾーン)
- 備考
- 左棟は右棟の附属屋(納屋)、右棟はこまちなみ建造物
- 総合
- 藩政期以来、金沢城下から越中南砺地方を結ぶ旧街道沿いに形成されたまちなみの中にある一軒家。左棟は正面の一部及び2階和室の一部には若干の伝統的な意匠が残っているがほぼ改修済である。水周りはない。右側物入等が隣家(右棟)と入り組んいる。右棟は代々大工棟梁の家柄であった建物で、内外部とも伝統的な意匠が多く残る貴重な建物である。