332
賃貸
町家332
金沢市片町1丁目9番1号(679番)
金澤町家保全活用推進区域
物件概要
- 主要用途
- 住宅
- 構造階数
- 木造 2階建て
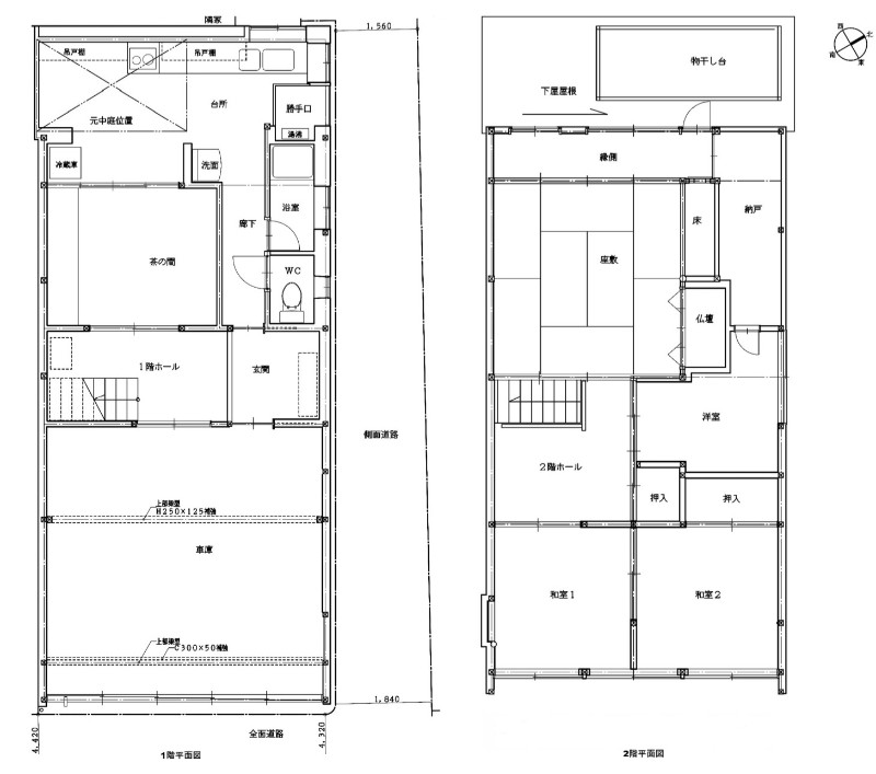
- 延床面積
- 113.05 m²
- 賃料
- 250,000円/月
- 敷金
- 業種による
- 礼金
- 業種による
- 保険料等
- 建築年次
- 最寄交通機関
- 北鉄バス、片町下車、徒歩3分
- 最寄の施設
- 片町スクランブル交差点
- 最寄の学校
- 中央小学校、長町中学校
- 駐車施設
- 無し
- 条件
- 現状渡し
- 備考
- 借主にて修繕、耐震等が必要。造作後の原状回復は不要。
- 地図
-
お問い合わせ
- 免許番号
- 石川県知事免許( 5 )第3639号
- 会社名
- 石川商事株式会社
- 電話番号
- 076-223-2244
- Fax
- 076-262-3400
建物調査(目視)
作成:金沢市
- 外観
-
- 屋根
- 金属板葺き(黒色)
- 外壁
- 正面1 階:アルミサッシ、正面2 階:漆喰壁、他3面:金属張り
- 建具
- 一部木製建具、他アルミサッシに改修済
- 設備
- 台所、洗面、浴室、便所
- 構造
- 建物全体が北側に傾いている。活用にあたっては耐震診断及び補強が必須。
- 敷地
- 敷地奥にはかつて中庭があったが、台所増築により残存していない。
- 備考
- 建築年代は江戸期の可能性あり。
- 総合
- 正面に袖うだつを備え、かつて石置屋根であった痕跡として軒先に雨蓋及び風返しが残存している。繁華街に近く、飲食店・物販店に向いているが、宿泊施設、住宅としての利用も立地的に可能。