335
賃貸
町家335
金沢市東山1丁目9番12号(349番)
伝統的建造物群保存地区 伝統的建造物
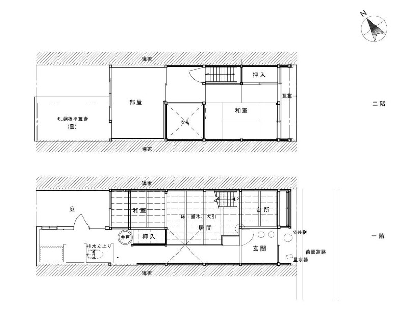
物件概要
- 主要用途
- 店舗・事務所
- 構造階数
- 木造 2階建て
- 延床面積
- 68.43 m²
- 賃料
- 132,000円/月
- 敷金
- 5ヶ月相当
- 礼金
- 1ヶ月
- 保険料等
- 要加入
- 建築年次
- 昭和初期
- 最寄交通機関
- 北鉄バス、橋場町下車、徒歩3分
- 最寄の施設
- ひがし茶屋街
- 最寄の学校
- 明成小学校、長町中学校
- 駐車施設
- 無し
- 条件
- 賃貸保証等:加入要
- 備考
- 地図
-
お問い合わせ
- 免許番号
- 石川県知事免許(11)第1952号
- 会社名
- 株式会社永和地所
- 電話番号
- 076-255-3110
- Fax
- 076-255-3111
- ホームページ
- http://www.eiwa-land.co.jp
- Eメール
- info@eiwa-land.co.jp
建物調査(目視)
作成:金沢市
- 外観
-
- 屋根
- 瓦葺き、背面一部GL鋼板葺き
- 外壁
- 正面:漆喰塗・木製板張り、側面背面:鋼板張り
- 建具
- 正面:木製格子戸・ガラス窓、背面:アルミサッシ
- 設備
- 給排水管は内部立ち上がりまで。ガス管は正面格子下に立ち上げ。
- 構造
- 令和7年度改修工事済。
- 敷地
- 敷地奥に中庭があるが、コンクリート舗装済み。
- 備考
- 総合
- 正面に袖ウダツが残存。令和7年工事で外観は建築当初に復原済み。内部も壁と軸部は下地までは修理済み。使用される方が内装工事の必要あり。工事計画時に、歴史都市推進課と協議すること。